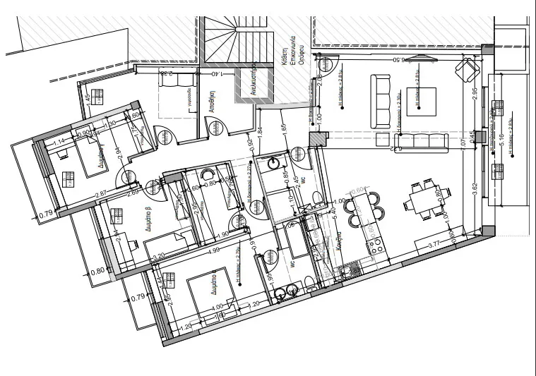
Πωλείται διαμέρισμα έκτασης 165 τ.μ στη Θεσσαλονίκη. Το διαμέρισμα βρίσκεται στον πρώτο όροφο και αποτελείται από 4 υπνοδωμάτια, σαλονοκουζίνα, ένα μπάνιο, ένα ντούζ, 2 αποθήκες, ένα βεστιάριο.
Το διαμέρισμα έχει διάταξη εμπρός. Προσφέρει υπέροχη. Διαθέτει κλιματιστικό, ανελκυστήρα, θέρμανση, συναγερμό.
Οι παραπάνω πληροφορίες βασίζονται αποκλειστικά σε πληροφορίες που έχει προσκομίσει ο ιδιοκτήτης του ακινήτου στην εταιρεία μας, οι οποίες υπόκεινται σε τυχόν τυπογραφικά λάθη ή αλλαγή τιμής από τον ίδιο.
ΒΑΣΕΙ ΤΟΥ ΝΟΜΟΥ 4072/2012, ΓΙΑ ΤΗΝ ΥΠΟΔΕΙΞΗ ΤΟΥ ΑΚΙΝΗΤΟΥ ΕΙΝΑΙ ΑΠΑΡΑΙΤΗΤΗ Η ΕΠΙΔΕΙΞΗ ΤΗΣ ΑΣΤΥΝΟΜΙΚΗΣ ΤΑΥΤΟΤΗΤΑΣ ΚΑΙ ΤΟΥ ΑΦΜ ΚΑΙ Η ΚΑΤΑΓΡΑΦΗ ΑΥΤΩΝ ΣΤΗΝ ΕΝΤΟΛΗ ΥΠΟΔΕΙΞΗΣ ΑΚΙΝΗΤΟΥ.
Η ένδειξη στο χάρτη δεν υποδεικνύει την ακριβή θέση του ακινήτου αλλά γενικά την περιοχή στην οποία αυτό βρίσκεται. Για οποιαδήποτε άλλη πληροφορία επικοινωνήστε μαζί μας.
Στην Almazidis Real Estate πέρα από το ακίνητο “διαμέρισμα προς πώληση 165 τμ μέτρων Κέντρο Θεσσαλονίκης Δήμος Θεσσαλονίκης”, διαθέτουμε και άλλα ακίνητα προς πώληση στην περιοχή Κέντρο Θεσσαλονίκης Δήμος Θεσσαλονίκης, ιδανικά για επένδυση ή προσωπική χρήση.
Κωδικός ακινήτου: G-54841